UF2.600
Proyecto certificado Best Place to Live®
Bienvenido a Los Tilos 3520, un proyecto de departamentos que se adapta a tus necesidades y a tu presupuesto, pensado para quienes buscan dar el paso hacia la vivienda propia con respaldo estatal y estándares de calidad reconocidos. Ubicado estratégicamente en Renca, este proyecto destaca por su cercanía a una amplia oferta de servicios, colegios, centros de salud, áreas verdes y accesos rápidos a las principales autopistas de Santiago.
Un sello diferenciador de Los Tilos 3520 es que cuenta con la certificación Best Place to Live®, reconocimiento que se otorga a proyectos que destacan por su calidad constructiva, diseño, equipamiento y nivel de satisfacción de sus residentes. Esto entrega una mayor tranquilidad y respaldo al momento de invertir en tu nuevo hogar.
El condominio ofrece tres salas comunitarias ideales para reuniones y actividades, además de un jardín con zona de juegos infantiles, que incluye juegos inclusivos y espacios deportivos para que niños y niñas puedan desarrollarse en un entorno seguro. Los departamentos cuentan con pisos de cerámica y terminaciones de buena calidad, aportando funcionalidad y durabilidad para la vida diaria.
La entrega del proyecto está proyectada para el segundo semestre de 2026, lo que te permite planificar con tiempo tu mudanza y organizar con tranquilidad el proceso de compra de tu vivienda.
En Los Tilos 3520 puedes acceder a tu departamento mediante Subsidio Automático DS19, sin necesidad de realizar postulaciones adicionales ni trámites complejos. El subsidio se gestiona directamente a través de la sala de ventas y puede alcanzar hasta 650 UF, reduciendo de forma importante el pie y facilitando el acceso al crédito hipotecario.
Los Tilos 3520 combina ubicación, equipamiento, respaldo estatal y la garantía de un proyecto certificado como Best Place to Live®, convirtiéndose en una oportunidad real para quienes buscan calidad, seguridad y proyección en su nuevo hogar en Renca.
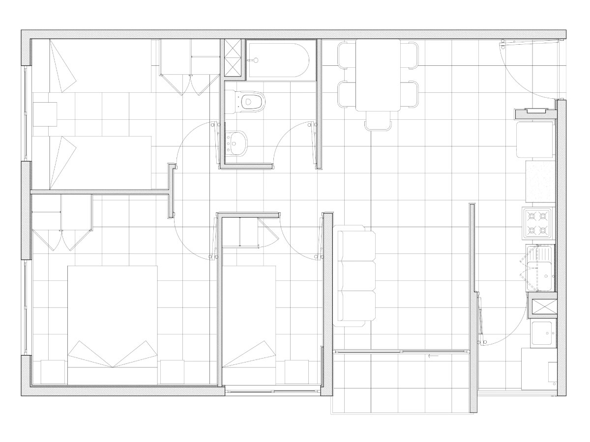
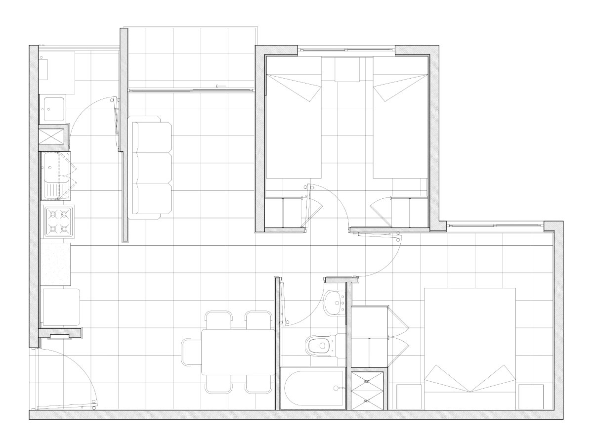
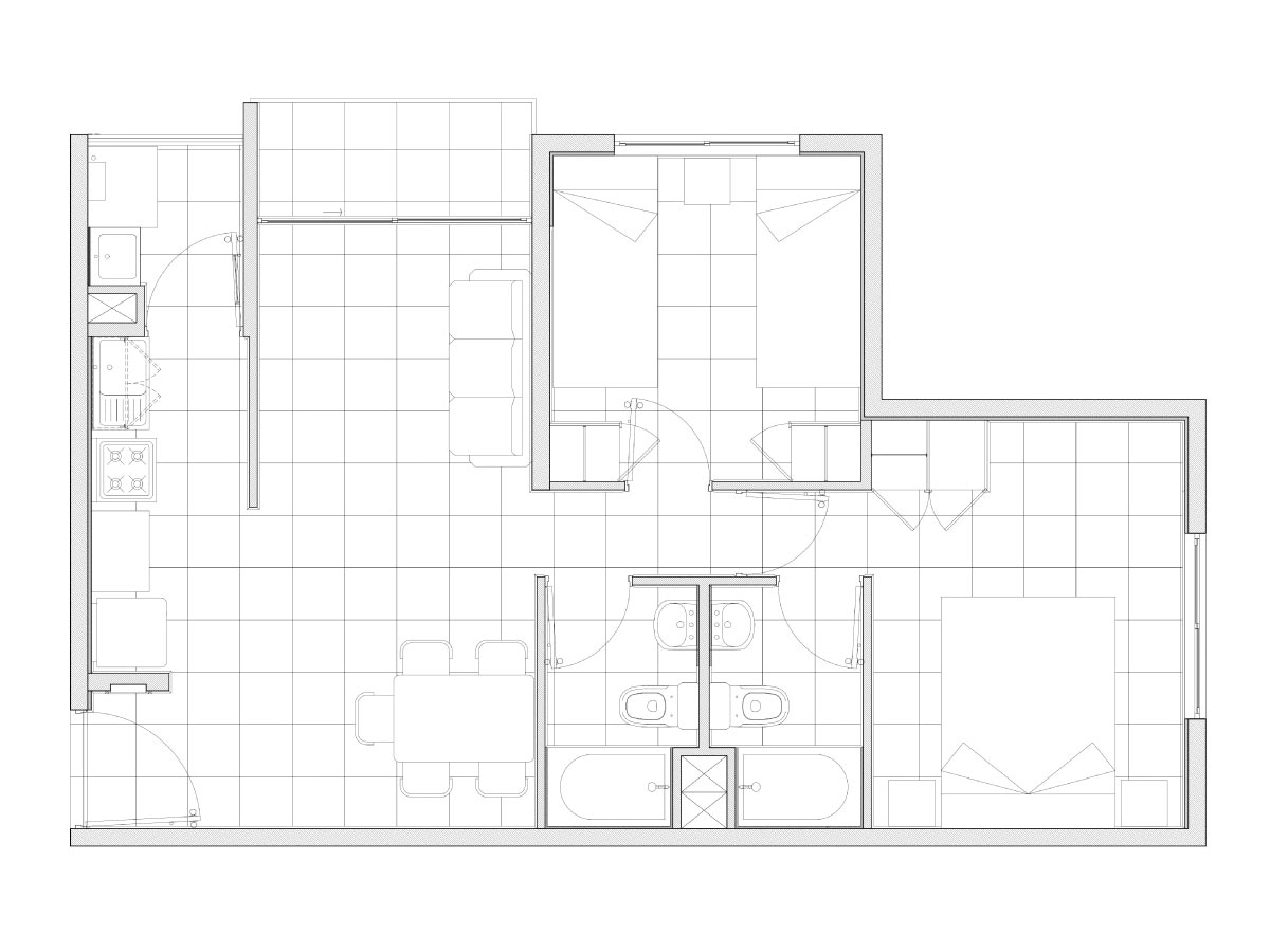
| Dormitorios Hasta | 3 |
| Baños Hasta | 1 |
| Superficie útil | 56,37 m2 |
| Tipo de propiedad | Departamento |
| Estado de propiedad | En Blanco |
| Inmobiliaria | Contigo |
| Región | Metropolitana |
| Comuna | Renca |
| Tipo Beneficio | DS1 / TRAMO 2, DS1 / TRAMO 3, DS19 (Automático) |
| Monto del subsidio | 650 UF |
| Renta Minima Solicitada | $850.000 |
La seguridad de tu información es importante para nosotros. Es por esto que no te solicitaremos ningún dato sensible a menos que sea necesario al momento de contactarte.
En una videollamada de 35 minutos revisamos tu caso, tengas o no subsidio ganado. Te decimos si puedes usarlo, cómo hacerlo o a cuál postular, y qué pasos seguir para acceder a tu vivienda sin errores ni pérdida de tiempo.
| Cookie | Tipo | Duración | Descripción |
|---|---|---|---|
| análisis de la casilla de verificación de información de la ley de cookies | 0 | 11 months | Esta cookie está configurada por el complemento de consentimiento de cookies de GDPR. La cookie se utiliza para almacenar el consentimiento del usuario para las cookies en la categoría "Análisis". |
| casilla de verificación de información de la ley de cookies funcional | 0 | 11 months | La cookie se establece mediante el consentimiento de cookies de GDPR para registrar el consentimiento del usuario para las cookies en la categoría "Funcional". |
| casilla de verificación de información de la ley de cookies necesaria | 0 | 11 months | Esta cookie está configurada por el complemento de consentimiento de cookies de GDPR. Las cookies se utilizan para almacenar el consentimiento del usuario para las cookies en la categoría "Necesarias". |
| cookielawinfo-checkbox-advertisement | 1 year | La cookie se establece mediante el consentimiento de cookies de GDPR para registrar el consentimiento del usuario para las cookies en la categoría "Publicidad". | |
| elementor | never | Esta cookie es utilizada por USATUSUBCIDIO.COM del sitio web. Permite al propietario del sitio web implementar o cambiar el contenido del sitio web en tiempo real. | |
| Información sobre la ley de cookies casilla de verificación otros | 0 | 11 months | Esta cookie está configurada por el complemento de consentimiento de cookies de GDPR. La cookie se utiliza para almacenar el consentimiento del usuario para las cookies en la categoría "Otro". |
| política de cookies vista | 0 | 11 months | La cookie está configurada por el complemento de consentimiento de cookies de GDPR y se utiliza para almacenar si el usuario ha dado su consentimiento o no para el uso de cookies. No almacena ningún dato personal. |
| rendimiento de la casilla de verificación de información de la ley de cookies | 0 | 11 months | Esta cookie está configurada por el complemento de consentimiento de cookies de GDPR. La cookie se utiliza para almacenar el consentimiento del usuario para las cookies en la categoría "Rendimiento". |